
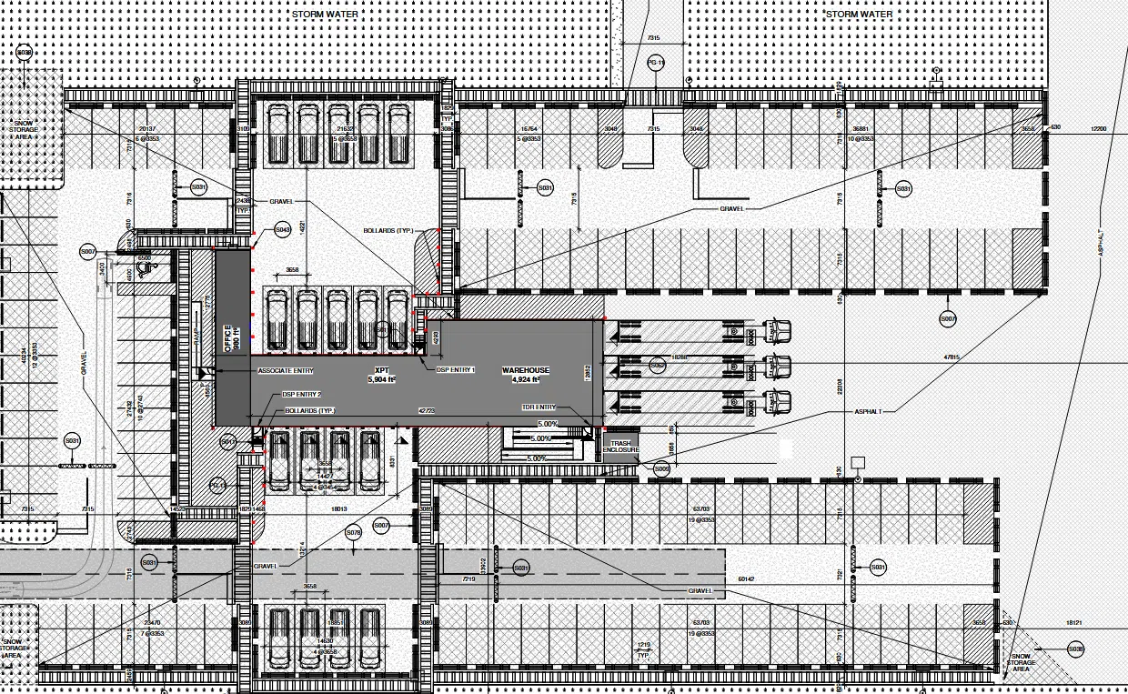
Proposed Amazon Distribution Centre (Image from Owen Sound Community Services Committee)
Amazon’s setting up a “last-mile” distribution centre in Owen Sound.
City staff approved a site plan application for the 1,100 square-metre facility at 1875 16th Avenue East. It’s in the city’s industrial park, just east of Heritage Place Mall.
The city’s community services committee reviewed the site plan approval at its meeting last week.
The distribution centre set for Owen Sound’s industrial park would assist Amazon in delivering packages. The site will also include parking, staging and loading areas.


